Der Blick auf die Spielterrasse Städtebauliche Ansätze Lageplan Grundriss Erdgeschoss Grundriss 1. Obergeschoss Grundriss 2. Obergeschoss Grundriss 3. Obergeschoss Querschnitt Axonometrie Ansicht Süd Ansicht Ost Funktions- und Nachhaltigkeitsdiagramm

Multifunktionales Schulgebäude Blatten


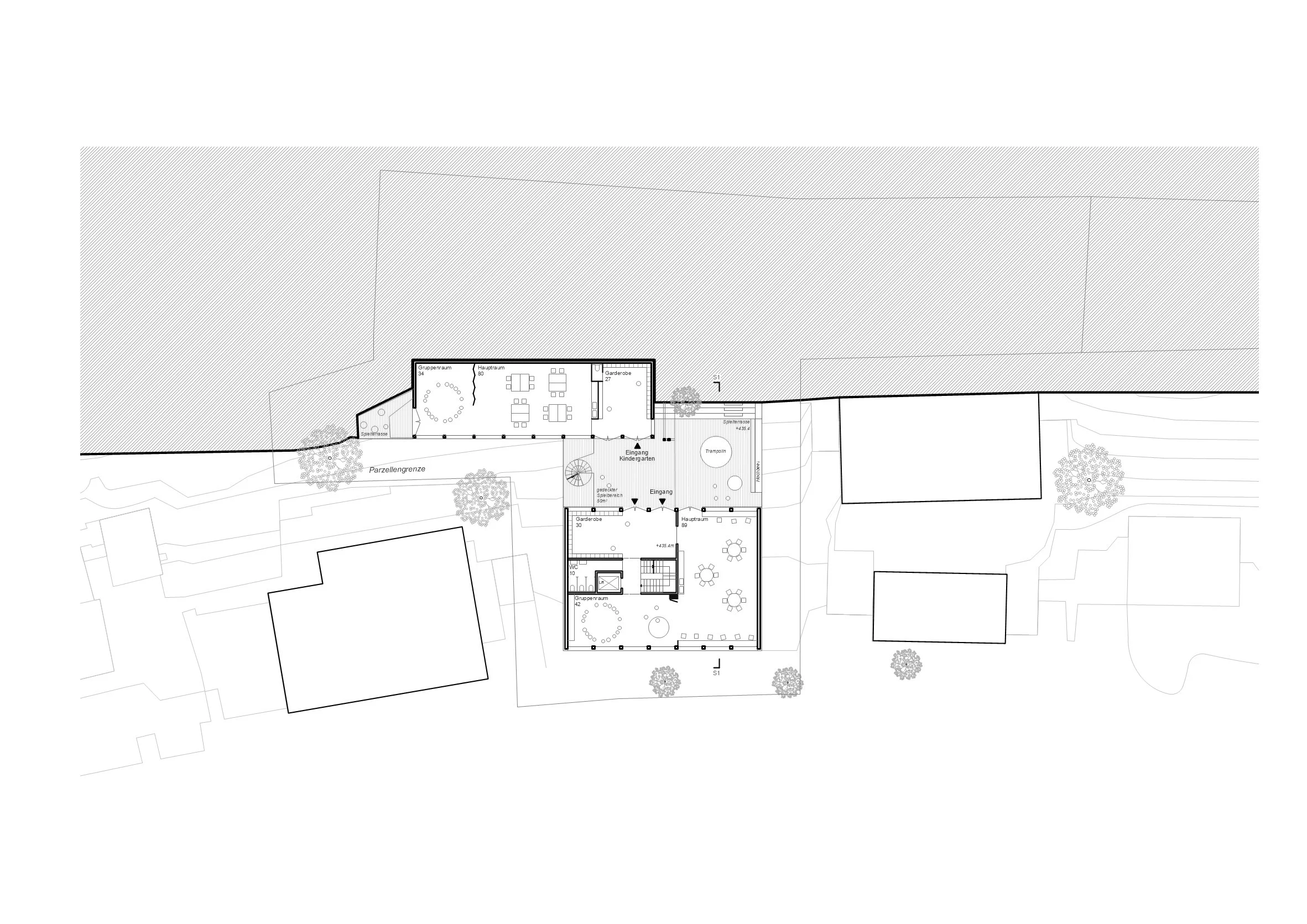
Die Schulanlage Blatten in Männedorf integriert sich harmonisch in die umgebende Topografie und besteht aus Unterstufenbauten im Süden und einem Oberstufenzentrum im Norden. Dazwischen liegen Außenräume, eine unterirdische Doppelturnhalle und weitere Einrichtungen. Umgeben von Erholungszonen, erweitert sich das Schulareal bis zur südlichen Erholungszone.

Der Entwurf gliedert sich in zwei Volumen, verbunden durch eine Spielterrasse, die als zentrales Element fungiert. Die Baukörper fügen sich mit Schrägdächern und Holzfassaden in die Umgebung ein. Im Außenbereich entstehen Spiel- und Gemeinschaftsflächen sowie ein Biodiversität fördernder Gemeinschaftsgarten.

Die Erschließung des Areals ist durch getrennte Zugänge für Mitarbeiter und Schüler klar strukturiert. Konstruktionstechnisch dominieren Holzelemente, ergänzt durch ein Sockelgeschoss aus Recyclingbeton. Photovoltaik-Elemente und ein Titanzink-Dach tragen zur Nachhaltigkeit bei. Im Innenraum schaffen natürliche Materialien eine lernfördernde Atmosphäre. Durch die optimierte Gebäudehülle, Querlüftung und Erdsonden wird der Energieverbrauch minimiert, was die ökologische Ausrichtung des Projekts unterstreicht. Insgesamt präsentiert sich der Entwurf als nachhaltiges, ästhetisch ansprechendes und funktional gestaltetes Bildungsumfeld.



Status Wettbewerb 2023 Ort Männedorf, CH Projektpartner Jerome Dureault Studio Loran Asaad Oswald Dillier Modellbau Grösse 500 qm
‹

›
0
Skip to Content
STADTGRAD
werk
studio
STADTGRAD
werk
studio
werk
studio

STADTGRAD © 2025

impressum datenschutz instagram