Modell Piktogramme Lageplan Erschliessungsdiagram Grudrisse Axonometrie Schnitte Ansichte Innenraumperspektive

Neubau Werkhof und Verwaltungabteilung, Menziken


Der Neubau von Werkhof und Verwaltung ergänzt die bestehende Struktur durch einen klaren, kompakten Baukörper mit leicht versetztem Satteldach. Mit seiner Orientierung zur Kleinfeldstrasse und dem vorgelagerten Platz erhält das Ensemble einen öffentlichen Charakter und tritt in Beziehung zum Bürgerheim.

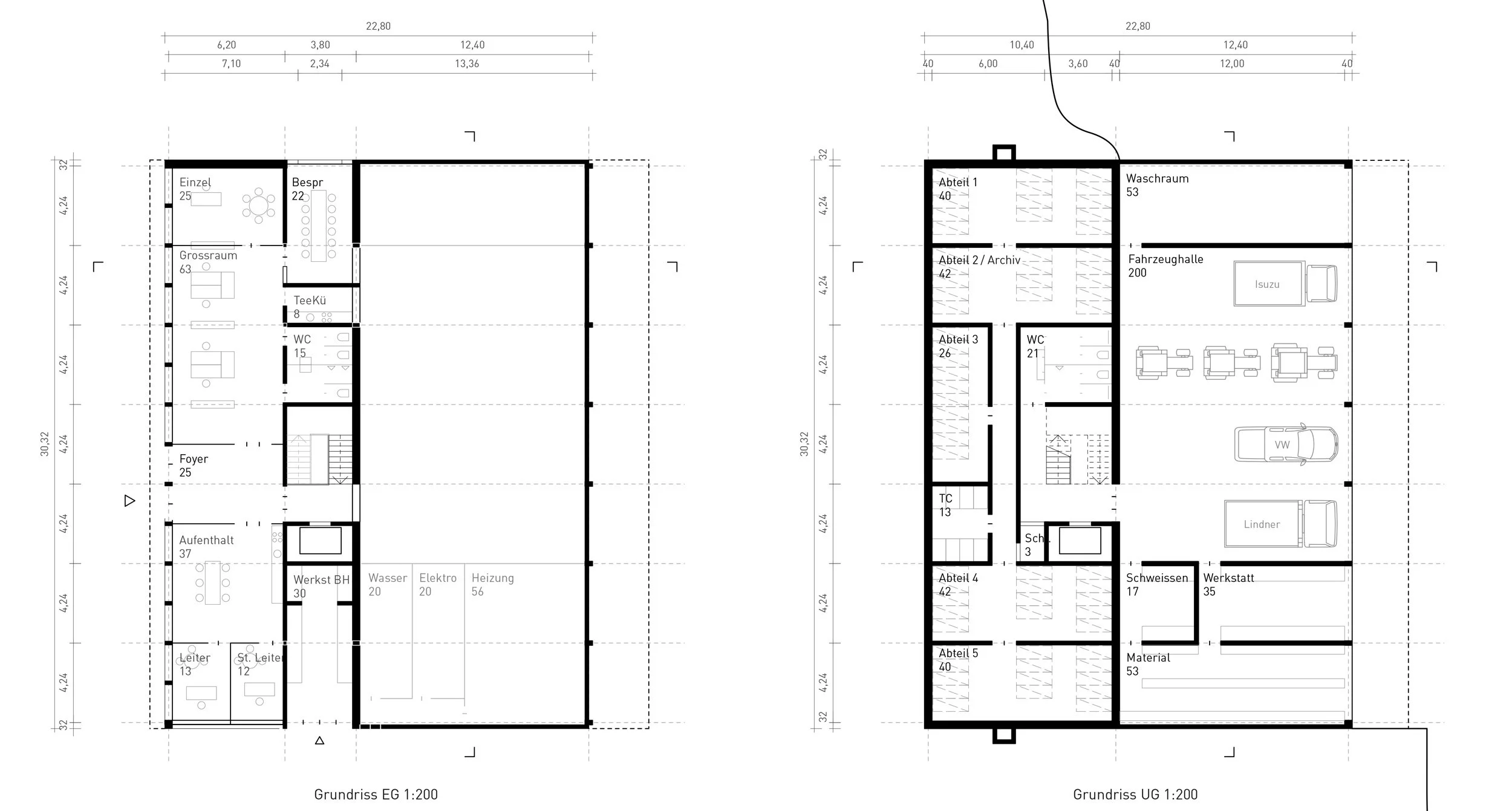
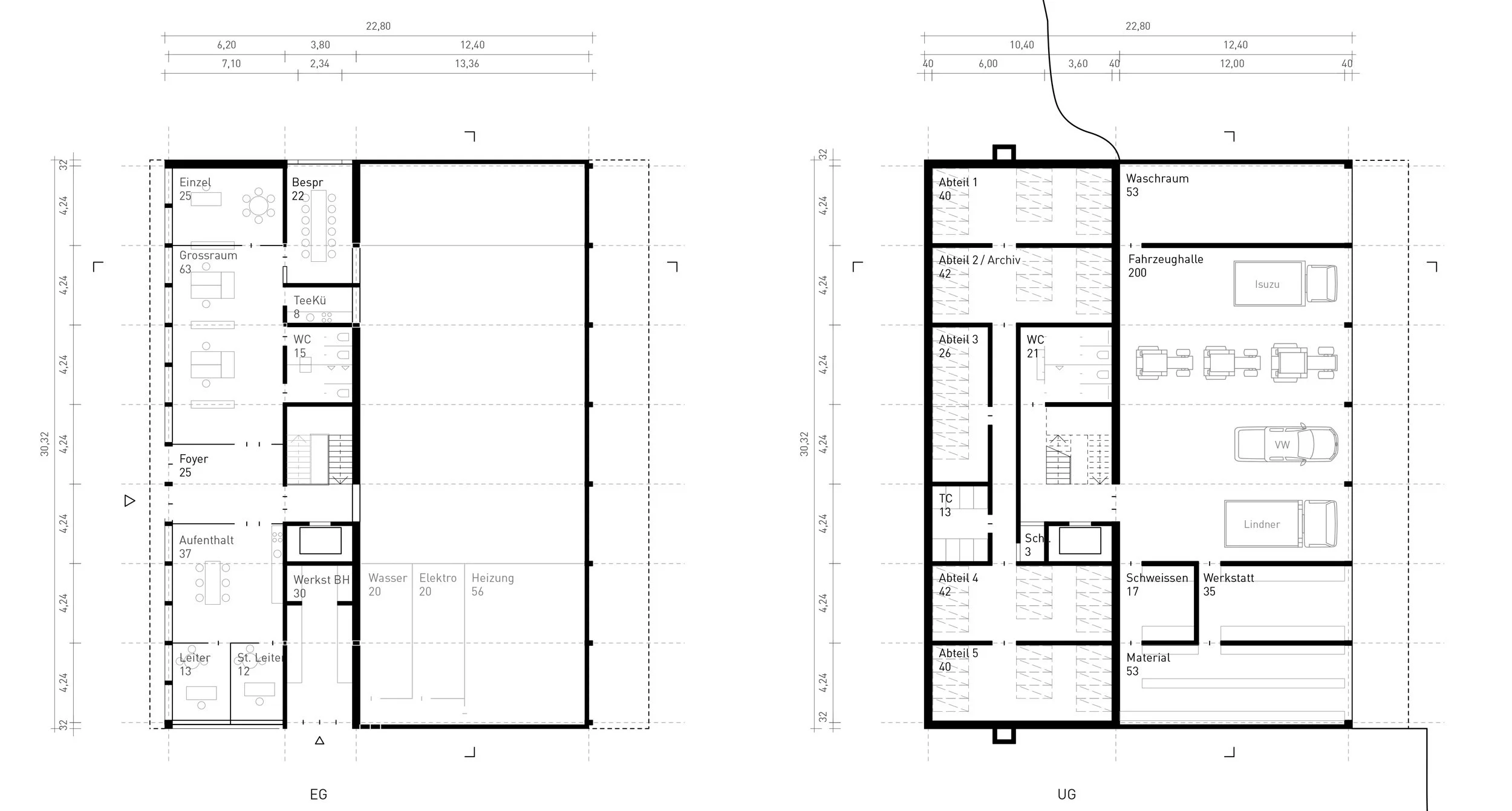
Die innere Organisation folgt der Typologie des gestreckten Vielzweckbaus, in dem verschiedene Nutzungen unter einem Dach vereint sind. Werkhof und Verwaltung liegen Rücken an Rücken und sind durch eine zentrale Zone mit Treppenhaus, Sanitärbereichen und Teeküche verbunden. So entstehen kurze Wege, klare Funktionsbezüge und ein kompakter thermischer Aufbau.

Die Fassade aus vertikal strukturierter Holzlattung verleiht dem Gebäude eine ruhige, präzise Gliederung. Transluzente Sektionaltore und Fensterbänder sorgen für natürliche Belichtung, während das auskragende Dach die Fassade schützt und überdachte Arbeitsflächen schafft.

Die Konstruktion kombiniert massive Bauteile im Untergeschoss mit einer vorgefertigten Holzkonstruktion darüber. Diese Bauweise ermöglicht eine effiziente Montage und die Ausführung durch lokale Zimmereien.

Der Neubau überzeugt durch funktionale Klarheit, einfache Konstruktion, handwerkliche Präzision und eine selbstverständliche Einbindung in Ort und Landschaft.





Status
Eingeladener Studienauftrag 2025

Ort
Menziken, CH

Projektpartner
illiz architektur

WEGO Gebäudetechnik GmbH, Gebäudetechnik

Grösse
1’600 qm


0
Skip to Content
STADTGRAD
werk
studio
STADTGRAD
werk
studio
werk
studio

STADTGRAD © 2025

impressum datenschutz instagram