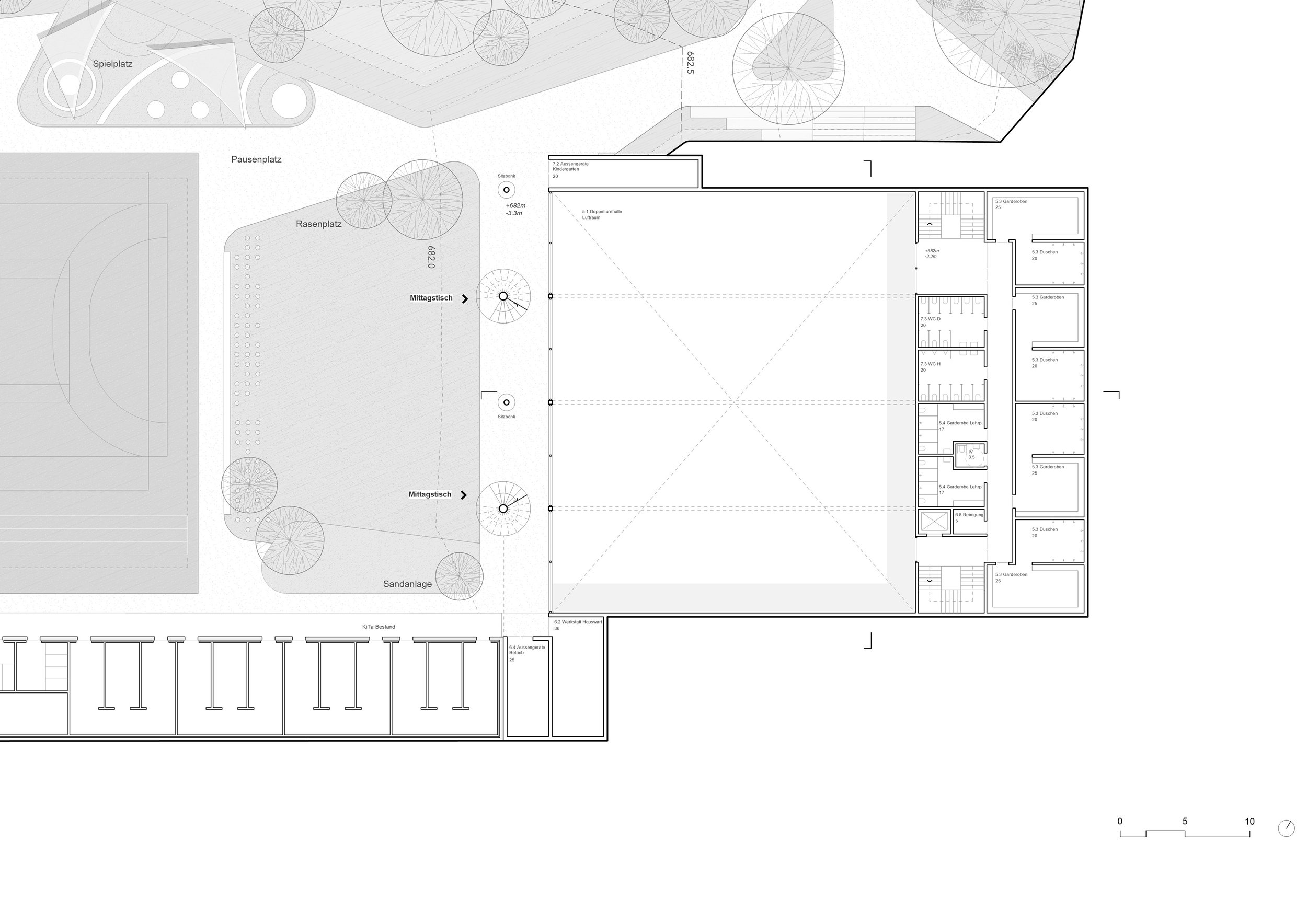
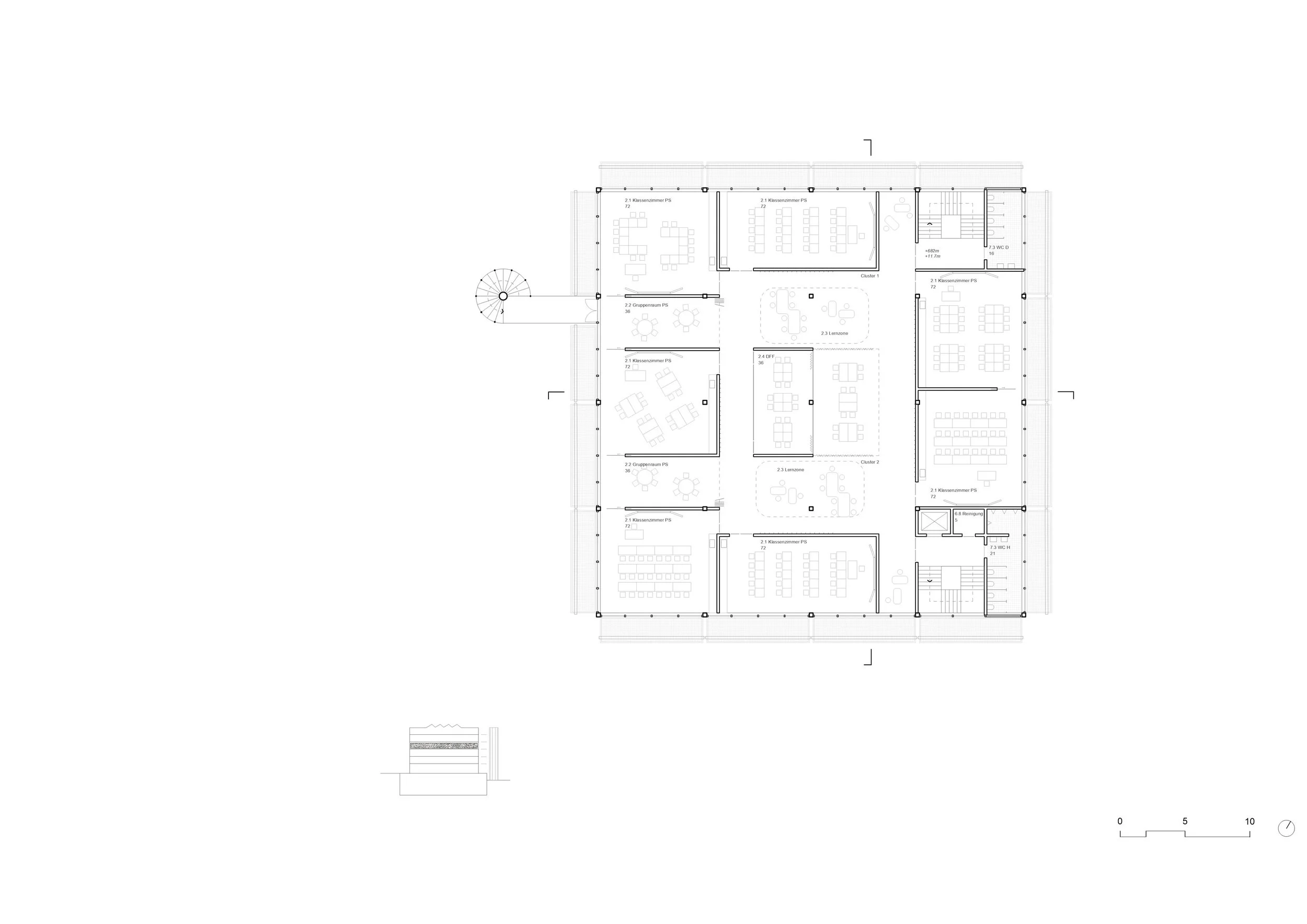
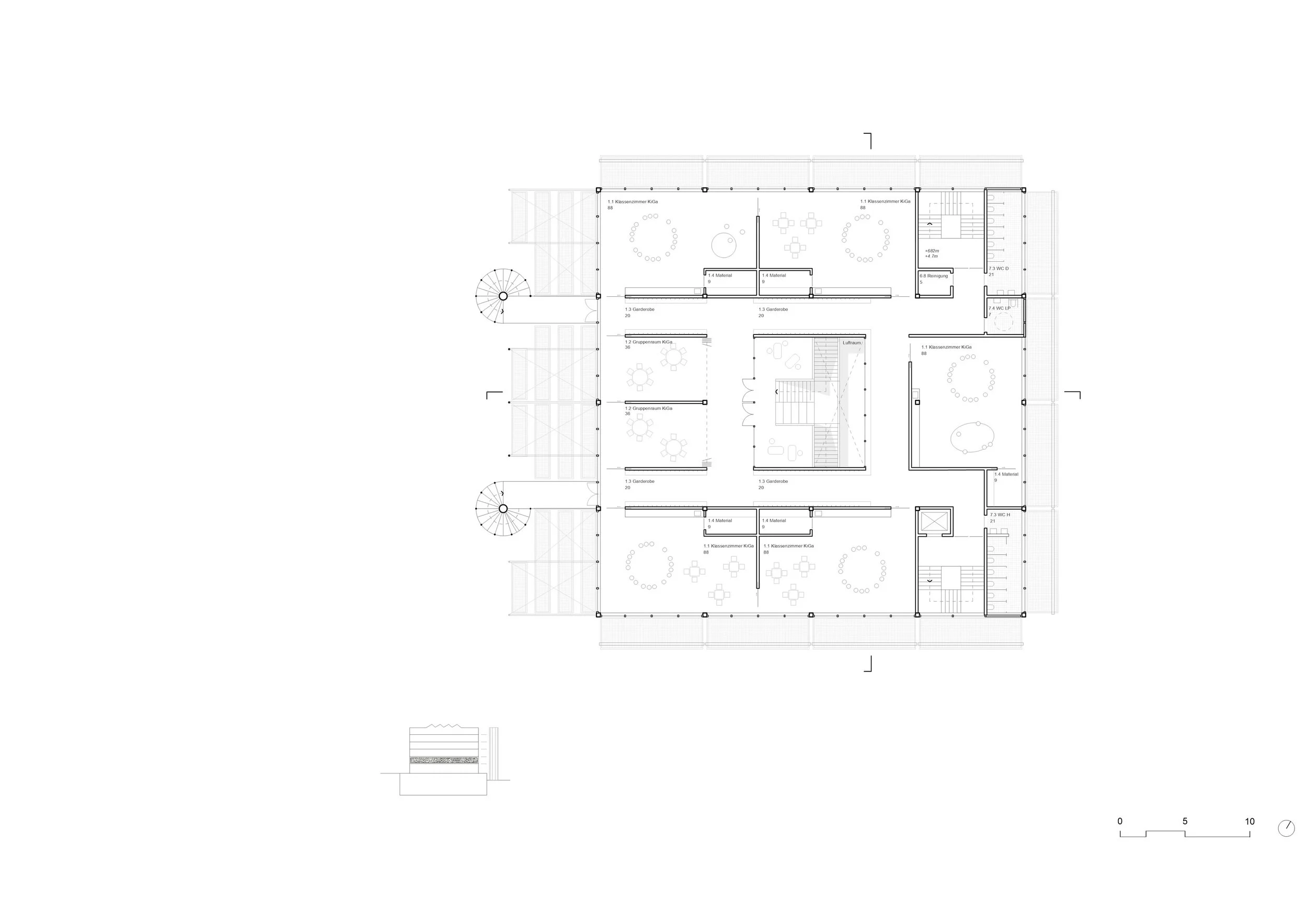
Sportplatzperspektive Lageplan Pikto Grundriss Untergeschoss - Doppelsporthalle Grundriss Untergeschoss - Sportplatz Grundriss Erdgeschoss - Tagesschule, Betrieb Grundriss 1. Obergeschoss - Kindergarten Grundriss 3. Obergeschoss - Primarschule Foyerperspektive Schnitte Ansichte Lernraumperspektive Konstruktion und Materialität Fassadenschnitt

Schulhaus Mitte


Das Schulhaus Mitte in Brig-Glis, strategisch zwischen Gliserallee und Kirchweg gelegen, bietet durch seine abfallende Topografie zum Fußballplatz Zeughaus eine markante Lage. Geplant als prägnanter, quadratischer Bau, schafft es zusammen mit dem bestehenden Kita-Gebäude ein harmonisches Ensemble und optimiert den Außenraum durch eine kluge Aufteilung in drei Zonen. Die Architektur ist offen und funktional, mit einer Fassade aus transluzenten Wellplatten und PV-Elementen, die Nachhaltigkeit betonen. Innen fördern natürliche Materialien wie Holz und Stampflehmboden ein gesundes Raumklima. Das Gebäude ist flexibel gestaltet, um zukünftige Anpassungen zu ermöglichen, und die Verwendung von recycelbaren und ökologischen Materialien unterstreicht das Engagement für Nachhaltigkeit. Die Erschließung wird durch ein klares Foyer erleichtert, das die Nord-Südachse aufnimmt. Die Planung integriert sowohl die Bildungs- als auch die Freizeitnutzung effizient und macht das Schulhaus zu einem zentralen Punkt der städtischen Entwicklung.





Status
Wettbewerb 2023

Ort
Brig-Glis, CH

Projektpartner
Jerome Durreault, Landschaftsarchitekt

Dragan Denda, Visualisierung

Oswald Dillier, Modellbau

Grösse
8’800 qm


0
Skip to Content
STADTGRAD
werk
studio
STADTGRAD
werk
studio
werk
studio

STADTGRAD © 2025

impressum datenschutz instagram