Aussenperspektive Lageplan Grundrisse Grudriss Regelgeschoss Fassadenschnitt Materialkollagen Schnitte Süd- und Westansicht

Wohnbau Pilotprojekt 2401


Das Projekt versteht sich als zeitgenössischer Beitrag zur Engadiner Baukultur im Zentrum von Pontresina. Es greift ortstypische Qualitäten wie Massivität, klare Volumetrie und feine Materialität auf, ohne diese zu imitieren. Eingebettet in die gewachsene Struktur aus Engadinerhäusern, Hotels und Chalets vermittelt das neue Wohnhaus zwischen der Massstäblichkeit des Kongresszentrums Rondo und den kleineren Wohnbauten am Hang.

Der Baukörper folgt der Hangtopografie und verzichtet bewusst auf grössere Eingriffe in das Gelände. Feine Knicke binden das Volumen in den städtebaulichen Kontext ein, während das Satteldach eine ruhige, archetypische Form bildet.

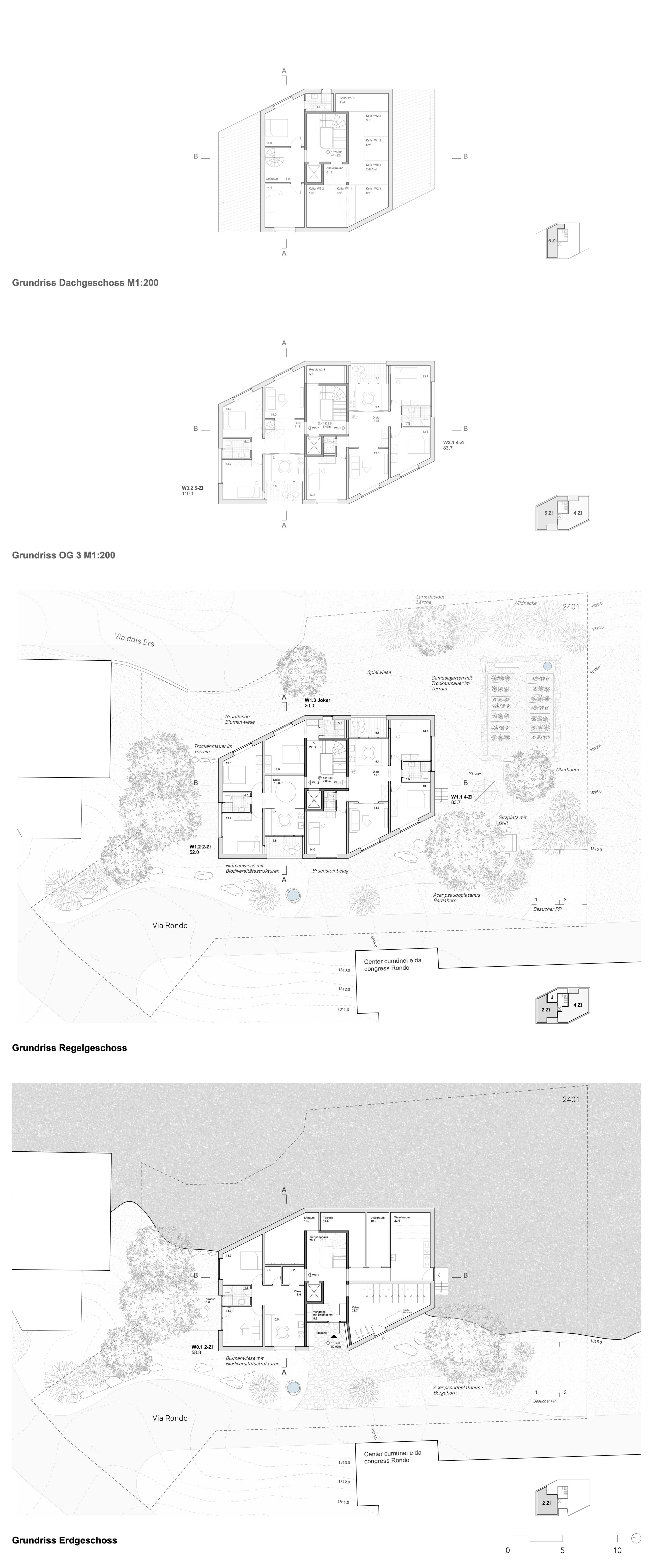
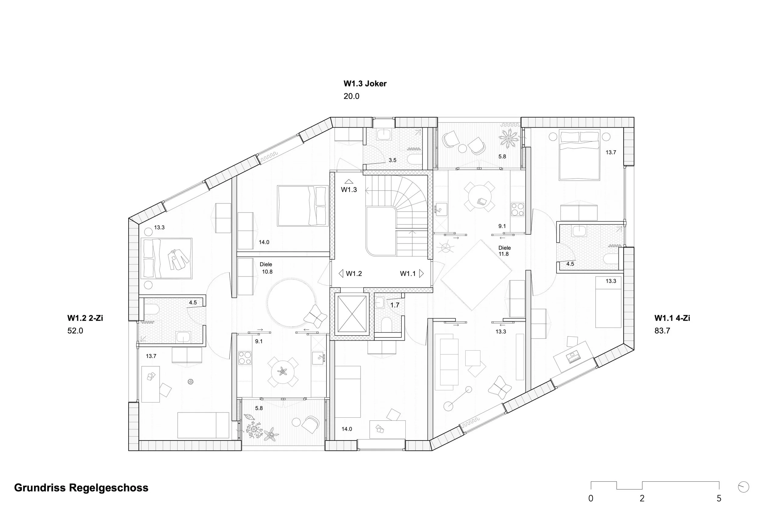
Die Grundrisse sind klar und funktional organisiert. Alle Wohnungen sind effizient geschnitten, gut belichtet und auf den Aussenraum ausgerichtet. Gemeinschaftliche Nebenräume sind zentral angeordnet und unterstützen einen alltagstauglichen, gemeinschaftlich orientierten Wohnbetrieb. Eine klare Erschliessung zur Via Rondo sowie ein gemeinsamer Garten ergänzen das Wohnhaus zu einem ortsbezogenen und nachhaltigen Ensemble.

/* ADD IMAGES!*/



Status Wettbewerb, 2025 Ort Pontresina, CH Projektpartner Habitat, Landschaftsarchitektur Grösse 900 qm
‹

›
0
Skip to Content
STADTGRAD
werk
studio
STADTGRAD
werk
studio
werk
studio

STADTGRAD © 2025

impressum datenschutz instagram