Aussenperspektive Lageplan Piktos Axo Grudrisse Wohnungstypen Innenraumskizze Konstruktionsaxo Arealschnitt Fassadenschnitt Fassadenschnitt Fassadenschnitt

Gemeinschaftliches Wohnen Pratteln


Das Projekt in der Wartenbergstrasse 47 verfolgt eine zukunftsfähige, gemeinschaftlich orientierte Nachverdichtung am Übergang von Wohnquartier zu Landschaft. Geprägt durch einen üppigen Garten, wertvollen Baumbestand und die besondere Topografie, reagiert es sensibel auf den Freiraum und den starken Naturbezug. Ein grüner Horizont mit Blick zur Hügellandschaft und zum Wald bildet eine zentrale räumliche Referenz.

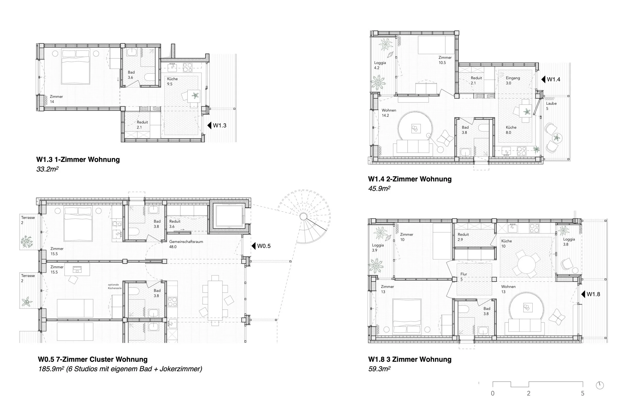
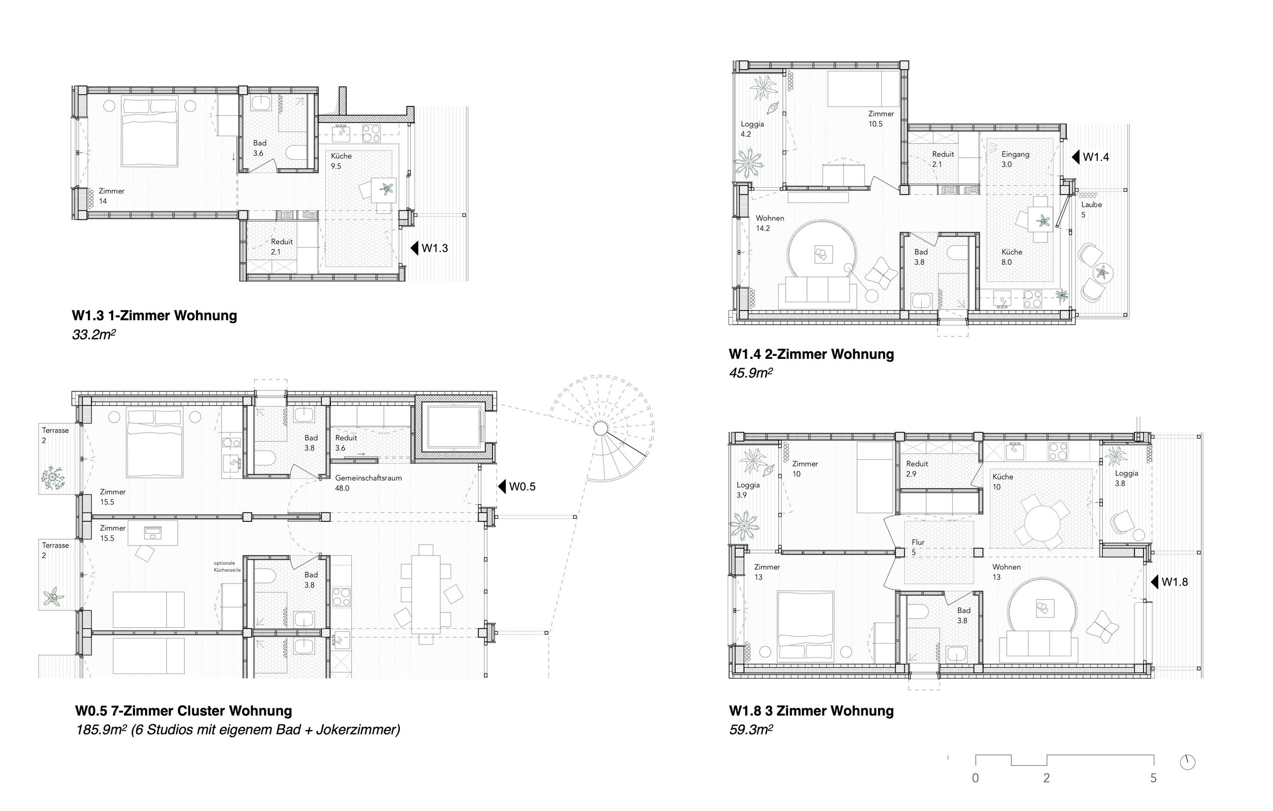
Ziel ist generationenverbindendes Wohnen nach dem Prinzip des modernen Stöckli. Unterschiedliche Wohnformen für ältere Menschen, Familien und gemeinschaftlich orientierte Haushalte schaffen ein ausgewogenes Verhältnis zwischen Rückzug, Privatheit und sozialem Austausch. Der Garten bleibt als gemeinschaftliches Herz erhalten und wird als Ort für Begegnung, Erholung und Teilhabe weiterentwickelt.

Drei präzise gesetzte Baukörper gliedern den Gartenraum, zu dem sich alle Wohnungen orientieren. Aussenliegende Erschliessungen, Laubengänge und gemeinschaftliche Räume fördern Begegnungen. Holz, Lehm und Stahl, systemgetrennte Bauweise und Low Tech Prinzipien sichern eine ressourcenschonende, flexible und nachhaltige Nutzung.





Status
Wettbewerb 2025

Ort
Pratteln, CH

Projektpartner
Habitat Landschaftsarchitektur

Grösse
1’650 qm


0
Skip to Content
STADTGRAD
werk
studio
STADTGRAD
werk
studio
werk
studio

STADTGRAD © 2025

impressum datenschutz instagram