Aussenperspektive Lageplan Piktogramme Grundriss Erdgeschoss Grundriss Obergeschoss Konstruktion Schnitte Innenraumperspektive Ansichten Fassadenschnitt

Schulraumerweiterung Rain


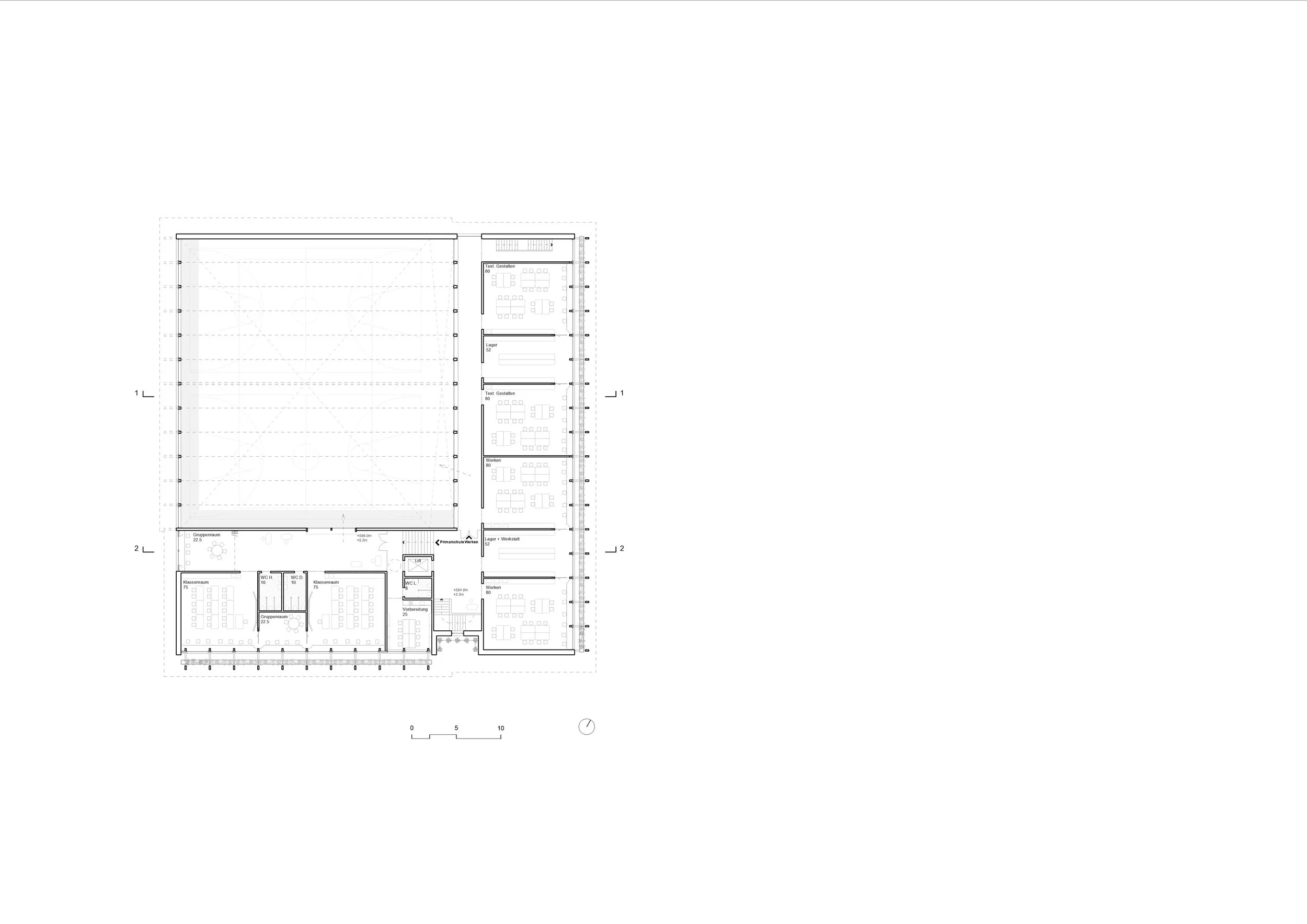
Das neue Schulhaus in Rain vereint eine kompakte, prägnante Bauweise mit nahtlos integrierten öffentlichen Räumen auf unterschiedlichen Ebenen. Die unterirdische Sporthalle ist direkt vom Parkplatz zugänglich und eng mit den Sportflächen verbunden. Der Hauptzugang, auf einer höheren Ebene gelegen, führt zu den Schul- und Kindergartenräumen, die an eine Spielwiese angrenzen. Dieses Layout optimiert den Außenraum und fördert die Zugänglichkeit und Sichtbarkeit der Schule.

Der Neubau gestaltet die Außenbereiche neu, mit einem integrierten Spielplatz und grünen Klassenzimmern, die die Biodiversität fördern und eine bereichernde Lernumgebung schaffen. Natürliche und recycelbare Materialien wie Lehm und Holz in der Baustruktur und Fassade unterstreichen das ökologische Konzept und bieten ästhetischen und funktionalen Wert.

Die flexible Anordnung des Gebäudes erlaubt vielseitige Nutzung der Innen- und Außenbereiche. Die robuste, wartungsarme Konstruktion mit vorfabrizierten Elementen verkürzt die Bauzeit und minimiert die Umweltbelastung, was das Gebäude zu einem nachhaltigen Modell für zukünftige Bildungseinrichtungen macht.





Status
Wettbewerb 2023

Ort
Brig-Glis, CH

Projektpartner
Jerome Durreault, Landschaftsarchitekt

Loran Asaad, Visualisierung

Oswald Dillier, Modellbau

Grösse
3’300 qm


0
Skip to Content
STADTGRAD
werk
studio
STADTGRAD
werk
studio
werk
studio

STADTGRAD © 2025

impressum datenschutz instagram