Eingangsperspektive Lageplan Grundriss Erdgeschoss Grundriss Obergeschoss Perspektive Sportplatz Schnitt L1 Ansicht Nord Perspektive Innenraumf

Schulerweiterung Sommeri


Das Schulareal Sommeri befindet sich direkt anliegend an den gewachsenen Dorfkern, welcher durch die Kirche im Zentrum markiert wird. Ziel des Entwurfes ist es durch das «Weiterbauen» bestehende Qualitäten aufzunehmen, die stadträumliche Situation zu klären und damit dem Schulareal eine neue und starke, identitätsstiftende Adresse zu verleihen.

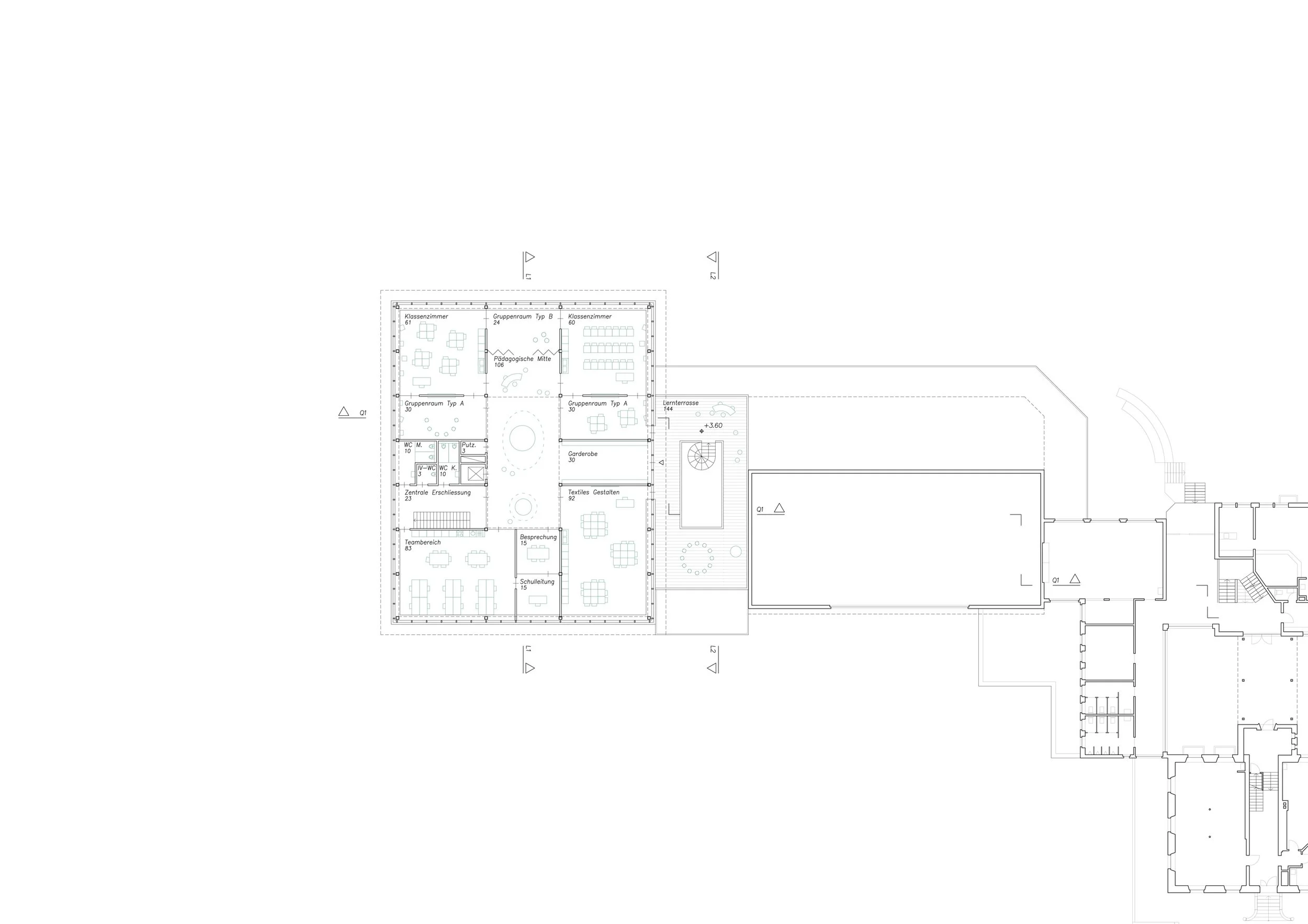
Das neue Schulhaus wird zweigeschossig und kompakt als unabhängiger Baukörper westlich der Turnhalle positioniert. Den locker aneinandergereihten Duktus der bestehenden Schulbauten fortsetzend, schliesst der Neubau das Ensemble am westlichen Ende ab und schafft damit das Gegengewicht zum alten Schulhaus im Süden. An der Hauptstrasse rückt die Schule visuell in die erste Reihe und präsentiert sich mit einem frischen Gesicht zur Öffentlichkeit. Städtebaulich entsteht eine ausgewogen gestaltete Front, welche geschickt zwischen kleinteilig-gewachsenem Ortsbild und großvolumigen Strukturen im Westen vermittelt.

Herzstück des zweigeschossigen Gebäudes bildet die skulpturale Netzstruktur, welche die Schule zu einem ganzheitlichen Lern-, Lebens- und Gestaltungsraum werden lässt. Der Erschliessungsbereich verknüpft so fließend Orte der Kommunikation, des Spiels und der lebendigen Gemeinschaft.





Status
2. Rang, Studienauftrag 2023

Ort
Sommeri, CH

Projektpartner
illiz architektur

Habitat Landschaftsarchitektur

studiorosarot, Visualisierung

Grösse
1’400 qm


0
Skip to Content
STADTGRAD
werk
studio
STADTGRAD
werk
studio
werk
studio

STADTGRAD © 2025

impressum datenschutz instagram